Activer le parc Maximilien

Le projet s’implante dans le parc Maximilien, à Bruxelles, en lien direct avec la transformation du site KANAL. Il propose un équipement public multifonctionnel réunissant activités culturelles, sportives et sociales, pensé comme un nouveau lieu de rencontre pour le quartier.

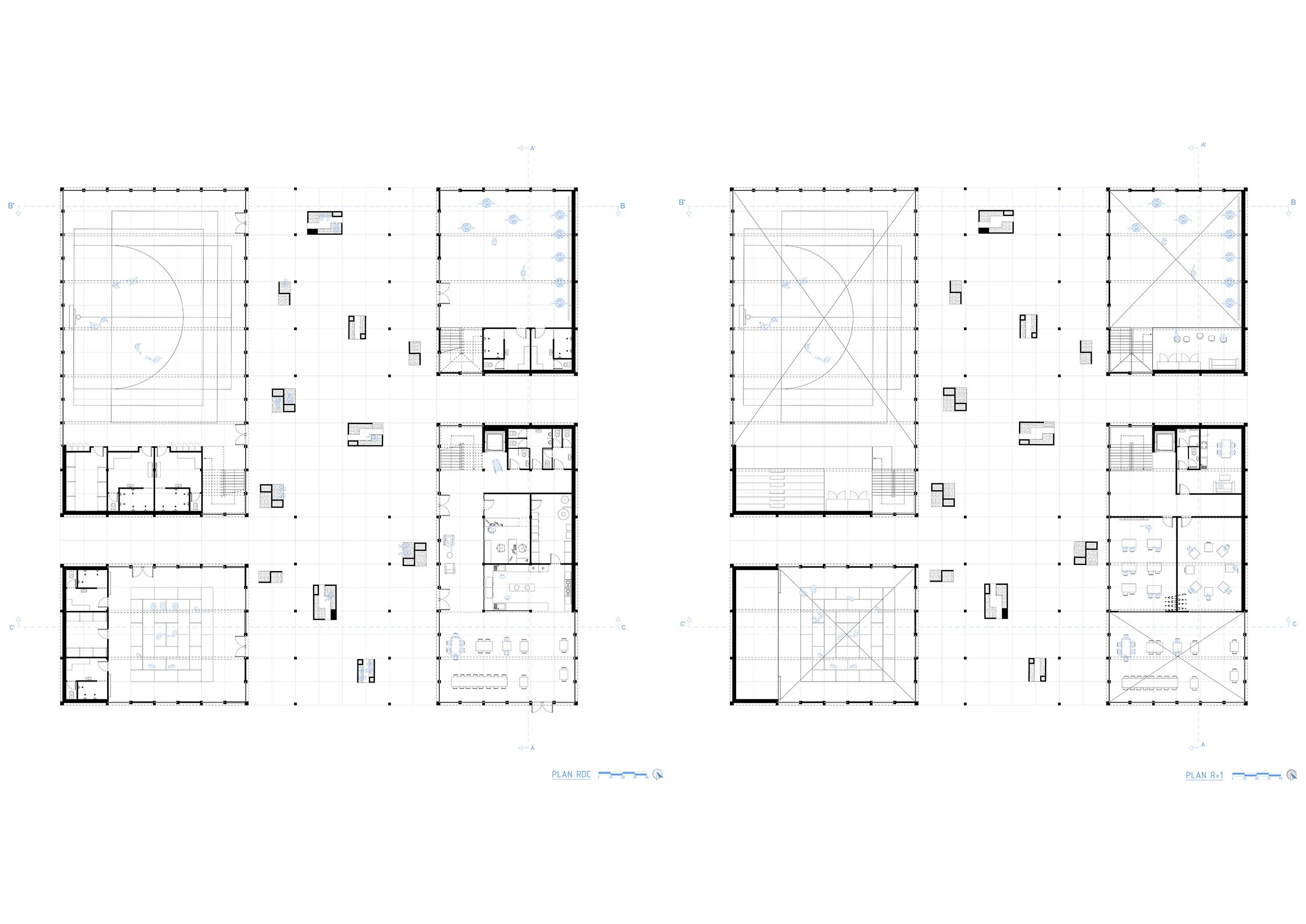
Implanté parallèlement au canal, le bâtiment occupe une position centrale reliant la rue Héliport, le métro et le parc. Son architecture s’organise autour d’une trame régulière et d’une nef centrale qui structure les circulations et distribue les différents volumes programmatiques. La structure en bois apparente, l’enveloppe contrastée et l’éclairage naturel par sheds expriment une architecture lisible, ouverte et adaptable, en dialogue constant avec le paysage.