Réinventer la maison de retraite

Le projet s’inscrit dans le cadre de l’atelier UMBAU et propose la réaffectation de la résidence des Tilleuls, à Saint-Gilles. Il prend le contre-pied de la maison de retraite institutionnelle pour imaginer un véritable habitat à échelle humaine, ouvert sur la ville et le quartier.

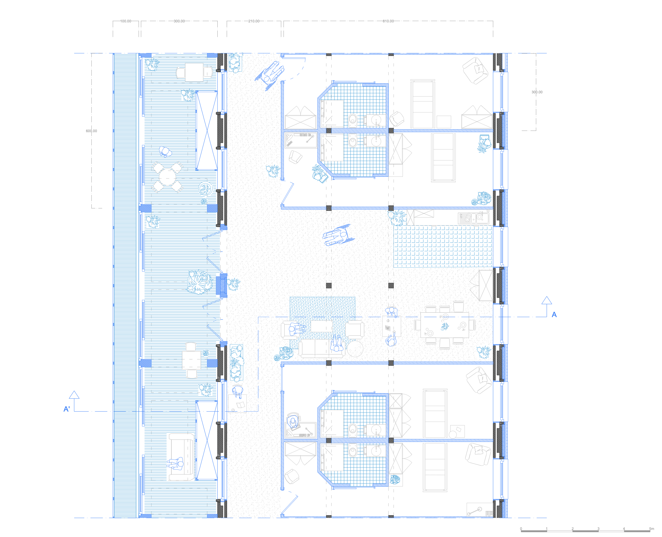
Cette intervention s’appuie sur la transversalité du site et place le parc au centre du projet comme espace public et intergénérationnel. Une extension alignée à la rue reconnecte le bâtiment au tissu urbain, tandis que de nouvelles formes d’habiter sont introduites : unités de vie, résidence-service et habitat partagé. Galeries, balcons et jardins d’hiver prolongent les espaces de vie, transformant le home en un lieu habitable, appropriable et vivant.