Habiter et Activer un entrepôt

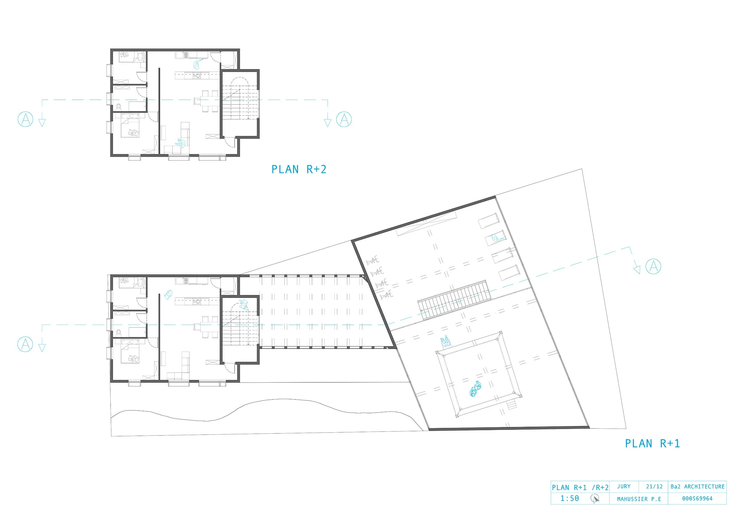
Le projet s’implante rue de l’Héliport, dans le quartier Nord de Bruxelles, et consiste en la réhabilitation d’un ancien entrepôt d’acier dont la toiture industrielle est conservée. L’intervention cherche à valoriser l’existant tout en introduisant de nouveaux usages ancrés dans la vie du quartier.

Le bâtiment combine des logements privés, accessibles par une entrée indépendante à l’arrière, et un espace sportif ouvert sur la rue. En rez-de-chaussée, une salle de boxe et de musculation modulable agit comme un lieu actif et visible, tandis que la toiture requalifiée apporte lumière naturelle et améliore les performances du bâtiment. L’ensemble propose une architecture simple, fonctionnelle et socialement engagée.