Vivre, Cultiver, Cuisiner

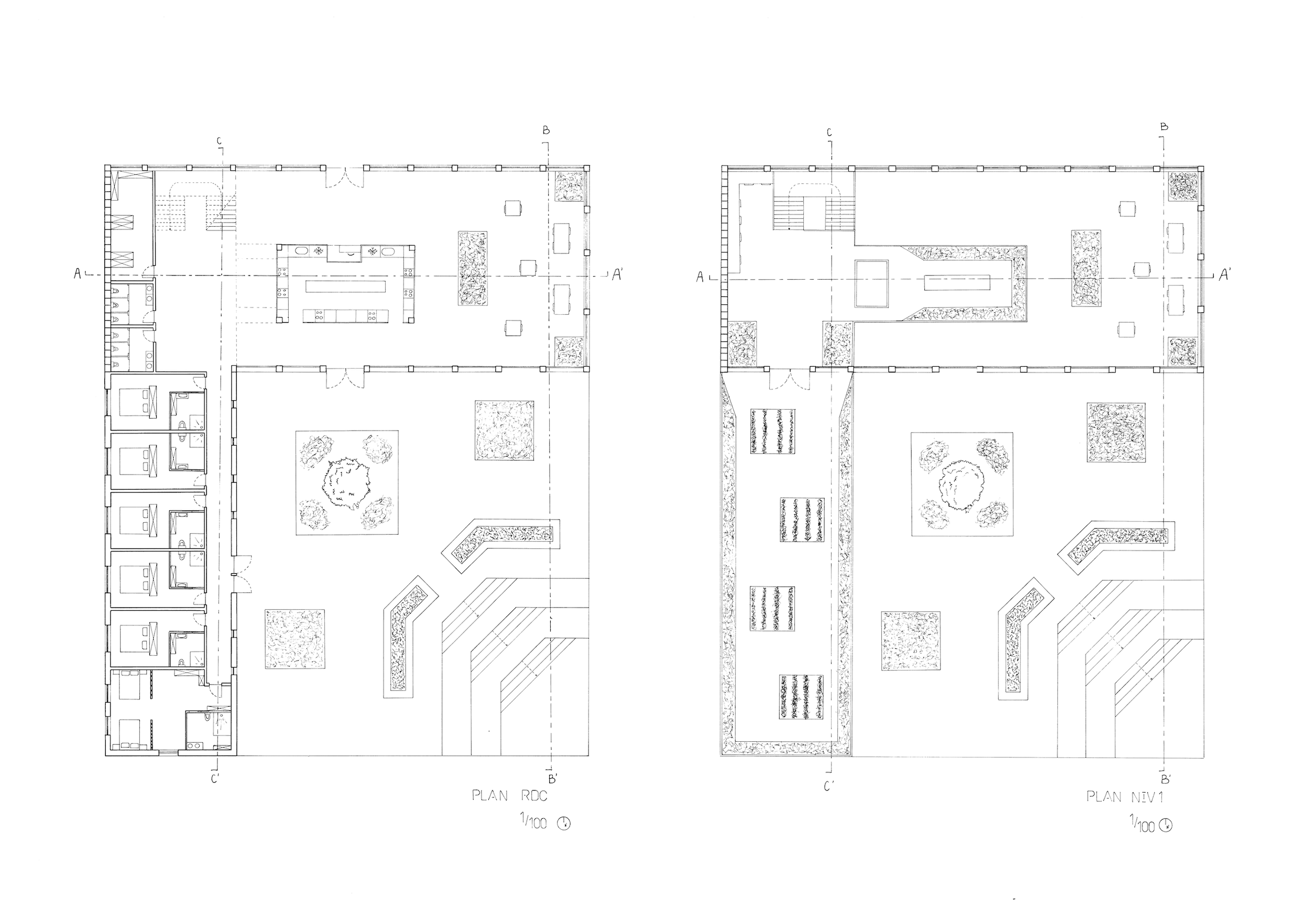
Le projet s’implante à Malines, le long de la Dyle et de son chemin cyclable, dans un paysage propice au repos et à l’apprentissage. Il propose un lieu d’accueil dédié à la gastronomie durable, où la relation entre alimentation et nature structure l’ensemble du projet. Le bâtiment accueille un camp de cuisine associé à des potagers et à des logements.

Les usagers récoltent, préparent et partagent les produits sur place, dans une architecture simple construite en bois et terre crue. L’organisation alterne espaces communs ouverts sur le paysage et lieux plus intimes, favorisant à la fois la convivialité et le ressourcement.